Search
Price Range

633 7th Street, Sheldon, IA 51201 (MLS # 824055)

Save to Favorites
Print
Share
PRICE $325,000 dsIDX morgage calculator
BEDS 2
BATHS 2
HOME SIZE 1,500 sqft
LOT SIZE 18.00 ac

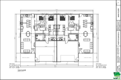
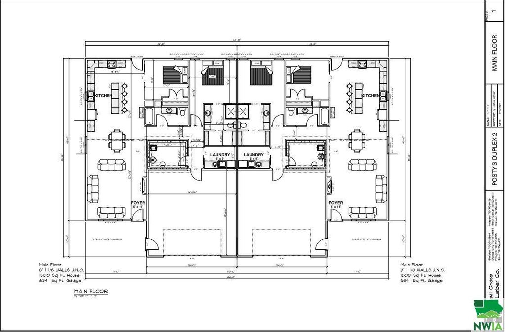
A Beautiful Opportunity awaits you here with New Duplex Construction  in a new development area: "THE PHOENIX AT BETHEL"    The development area will include 6 duplexes and 2 residential homes. These units are in the process of being built currently.  Plans are complete but if you are in early,  you will have the opportunity to customize a few options with the builder.  Check out these features of the new construction in a beautiful location in the center of town at "The Phoenix at Bethel" 1500 square feet on the main level This unit will be built on a slab and not have a lower level 8' sidewalls  on the main  Vaulted ceiling in the Great Room 2 Bathrooms on the main including a Master Suite Quartz Countertops Custom cabinetry by G & E Cabinets   Cabinets will be Maple and painted white. Remaining portion will be vinyl plank flooring. Zero entrance from garage to living quarters and from outside into front door. 2 x 6 stud wall construction Electric Fireplace in the Great Room LP Smartboard siding feature the front of duplex to contain approximately 75% stone Siding offers 30 year Manufacturers warranty Pella Vinyl Windows Asphalt shingles Kitchen appliances not included but will be equipped for gas or electrical appliances Gas Furnace Lot will be seeded ***Check out this opportunity soon.  Beautiful new construction with the goal of completion in Summer of 2025!!

DAYS ON MARKET 634 LAST UPDATED 10/28/2025
YEAR BUILT 2024 GARAGE SPACES 2.0
COUNTY O’Brien STATUS Active
PROPERTY TYPE(S) Condo/Townhouse/Co-Op

SCHOOLS
Elementary School Sheldon
Jr. High School Sheldon
High School Sheldon

PRICE HISTORY
Prior to Jun 10, '24 $349,000
Jun 10, '24 - Jul 24, '24 $339,000
Jul 24, '24 - Mar 19, '25 $329,000
Mar 19, '25 - Oct 28, '25 $299,999
Oct 28, '25 - Today $325,000


ADDITIONAL DETAILS
AIR Central Air
AIR CONDITIONING Yes
BASEMENT Unfinished, Yes
CONSTRUCTION Stone
GARAGE Attached Garage, Yes
HEAT Electric, Forced Air, Natural Gas
LOT 18 acre(s)
PARKING Shared Driveway, Attached
SEWER Public Sewer
STYLE Ranch
WATER Public
MORTGAGE CALCULATOR
   

TOTAL MONTHLY PAYMENT

0
P
I
*Estimate only

SATELLITE VIEW



 
CONTACT US ABOUT 633 7TH STREET
 / 
We respect your online privacy and will never spam you. By submitting this form with your telephone number you are consenting for Darren VantHul to contact you even if your name is on a Federal or State "Do not call List".

Listed with Northwest Realty
Information being provided is for consumers' personal, non-commercial use and may not be used for any purpose other than to identify prospective properties consumers may be interested in purchasing. Listing information is deemed reliable, but not guaranteed.

This IDX solution is (c) Diverse Solutions 2025.

60 Properties
Sort by: